Home\Real Estate\Search Results\4320 5th Avenue, Marianna, FL 32446

4320 5th Avenue, Marianna, FL 32446

#779791

CommercialLease

Built in 1986

$14

Details

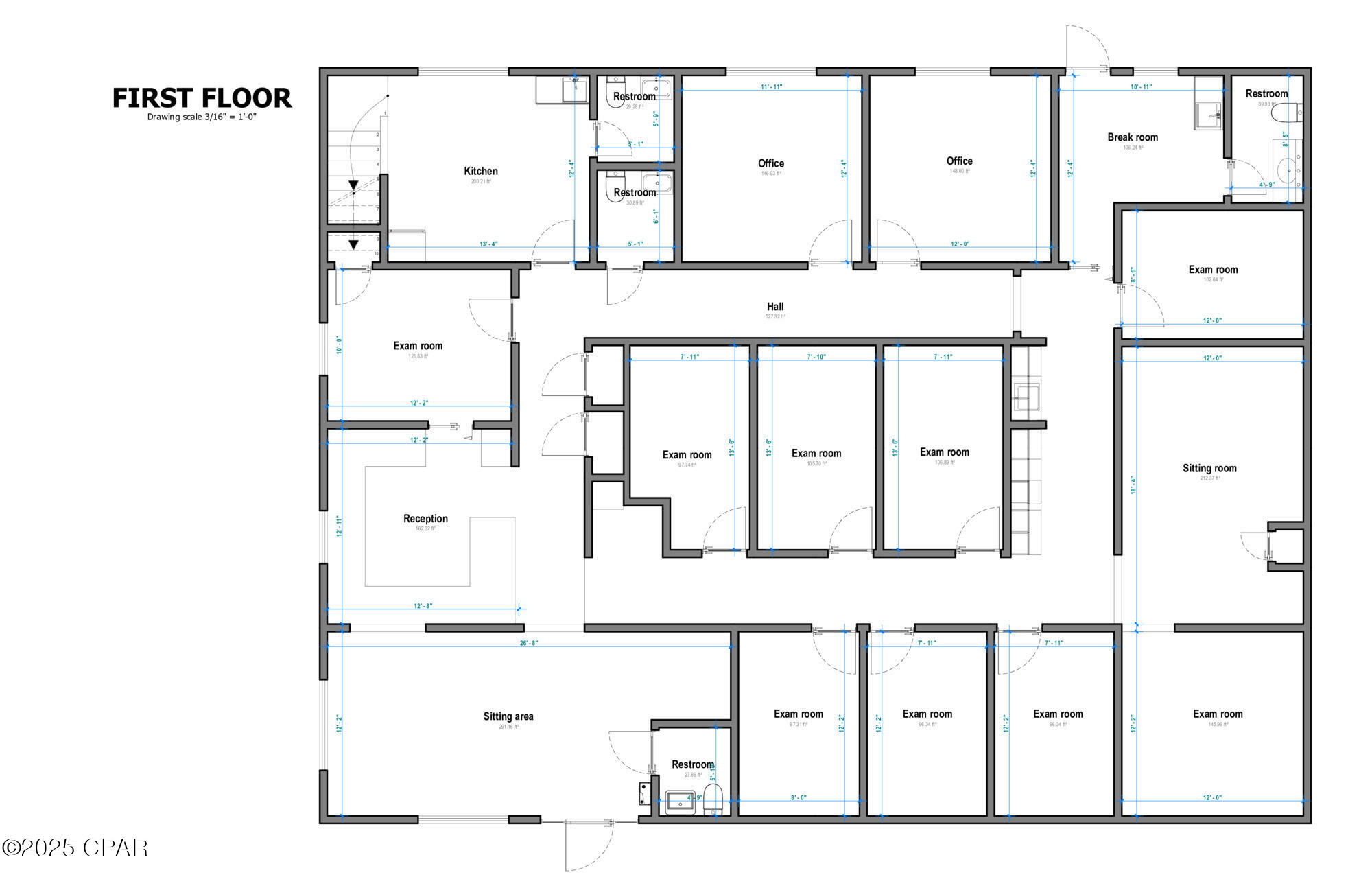
A turn-key 3,300 SF medical office space for lease at 4320 5th Avenue in Marianna, FL. The subject property is a unit within the Panhandle Medical Plaza and most recently served as an ophthalmology office and general medical office (physical & behavioral health). The current configuration includes eight (8) exam rooms, two (2) private offices, a retail optical showroom, two waiting areas, four (4) restrooms, and a reception/ records area. Also, a full-size, internal stairway leads to an unconditioned, vaulted second-floor storage area of approximately 800 +/- SF. Estimated Operating Expenses (OpEx)/ Additional Rent are $5.25/ SF (2025 estimated).
GENERAL
Real Estate Type CommercialLease
Full Bathrooms 0
Half Bathrooms 0
One Quarter Bathrooms 0
Three Quarter Bathrooms 0
Lot Size 0
Real Estate Sub Type Office
Stories 0
Year Built 1,986
Lot Size Area 0
Agent Key 27,030,022
Agent MLS Id B07402
Office Key 5,952,724
Source System Name Central Panhandle Association of REALTORS®
Source System Id TRESTLE
Office Phone 850-913-9133
Agent Url http://www.KevinWattenbarger.com
Elevation 0
Parcel Number 33-5N-10-0421-00C0-0015
Number Of Units Total 0
Tax Legal Description See deed for legal description.
Internet Address Display True
Internet Automated Valuation Display True
Agent Name Kevin Wattenbarger
Agent Email [email protected]
Agent Office 850-913-9133
Broker Id 5BRE
Office Name Five Bridges Real Estate Services Co. LLC
Listing Contract Date 10/1/2025
Square Feet 3,300
Days On Market 1
Status Active
BUILDING
Fireplace False
Parking Total 0
Utilities SewerAvailable
Private Pool False
Spa False
LOCATION
Subdivision No Named Subdivision
Directions Property Address: 4320 5th Avenue
Marianna
Florida 32446.
County Jackson
Waterfront False

Questions