Home\Real Estate\Search Results\151 Dama Del Mar Way, Panama City Beach, FL 32407

151 Dama Del Mar Way, Panama City Beach, FL 32407

#779249

RES

3/2

Built in 2025

$467,900

Details

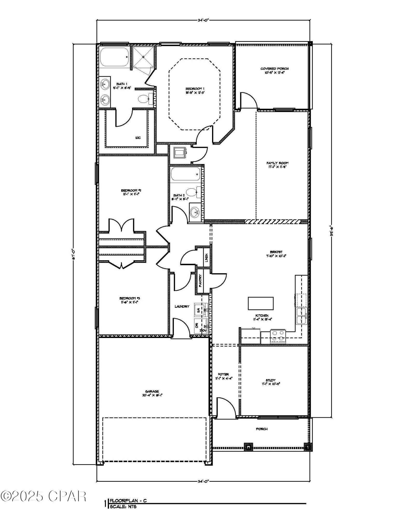
Welcome to 151 Dama Del Mar Way, new home at Caballeros Estates at Hombre in Panama City Beach, Florida. This home is under construction and has three-bedrooms, two-bathrooms with a flex space just off the entry hall. This is space illuminated by a large picture window and it could be used as a home office or a formal dining room. Continuing through the entry hall you enter an open concept living area with a kitchen and breakfast area as well as a large family room with vaulted ceiling. The kitchen is accented with upper and lower cabinetry, a center island and plenty of counter space. The white cabinetry complements the elegant quartz countertops. The primary bedroom is at the back of the home and features a private ensuite bathroom with a walk-in closet, a shower and separate soak tub as well as a dual sink vanity. The additional bedrooms are in an adjacent hall off the living room. These bedrooms share a full bathroom with shower and tub combination; a linen closet is in the hall that also leading to the laundry area and two car garage. This home has covered back patio off the family room. EVP floors are throughout the home and create a seamless transition between rooms. Caballeros Estates at Hombre is centrally located in Panama City Beach with just a short drive to public beach access spots and is convenient to shopping and dining.
GENERAL
Real Estate Type RES
Full Bathrooms 2
Half Bathrooms 0
One Quarter Bathrooms 0
Three Quarter Bathrooms 0
Lot Size 0
Real Estate Sub Type SingleFamilyResidence
Stories 0
Year Built 2,025
Lot Size Units Acres
Lot Size Area 0
Lot Size Dimensions 52x115
Agent Key 27,029,499
Agent MLS Id B12237
Office Key 5,952,446
Source System Name Central Panhandle Association of REALTORS®
Source System Id TRESTLE
Office Phone 850-660-1701
Elevation 0
Parcel Number 32738-875-212
Number Of Units Total 0
Tax Legal Description CABALLEROS ESTATES AT HOMBRE LOT 106 ORB 4769 P 128
Internet Address Display True
Internet Automated Valuation Display True
Agent Name Eric Weisbrod
Agent Email [email protected]
Agent Cell 850-641-7679
Agent Office 850-660-1701
Broker Id DROFEC
Office Name DR Horton Realty of Emerald Coast
LLC
Listing Contract Date 9/19/2025
Square Feet 1,689
Days On Market 0
Status Active
BUILDING
Construction HardiplankType
Cooling CentralAir
CeilingFans
Heating Central
Electric
Style Traditional
Interior Features KitchenIsland
SmartHome
SmartThermostat
Appliances Dishwasher
Disposal
Microwave
Flooring LuxuryVinylPlank
Fireplace False
Parking Total 0
Parking Features Attached
Driveway
Garage
GarageDoorOpener
Rooms 6
Utilities ElectricityAvailable
Patio And Porch Features Covered
Porch
Private Pool False
Spa False
LOCATION
Subdivision Caballeros Estates at Hombre
Directions From U.S. 98
turn south onto N Glades Trail. Travel down to the stop sign and turn right onto Hombre Circle then take another right onto Coyote Pass. Take your next left onto Dama Del Mar Way. The model home will be the first home on your left.
County Bay
Waterfront False
SCHOOLS
Elementary School Hutchison Beach
Middle School Surfside
High School Arnold
VIRTUAL TOUR
Virtual Tour Url Unbranded 1 https://my.matterport.com/show/?m=dXXyT1JDkeJ

Questions