Home\Real Estate\Search Results\35 Brizo Lane Lot 1

35 Brizo Lane Lot 1

#770156

RES

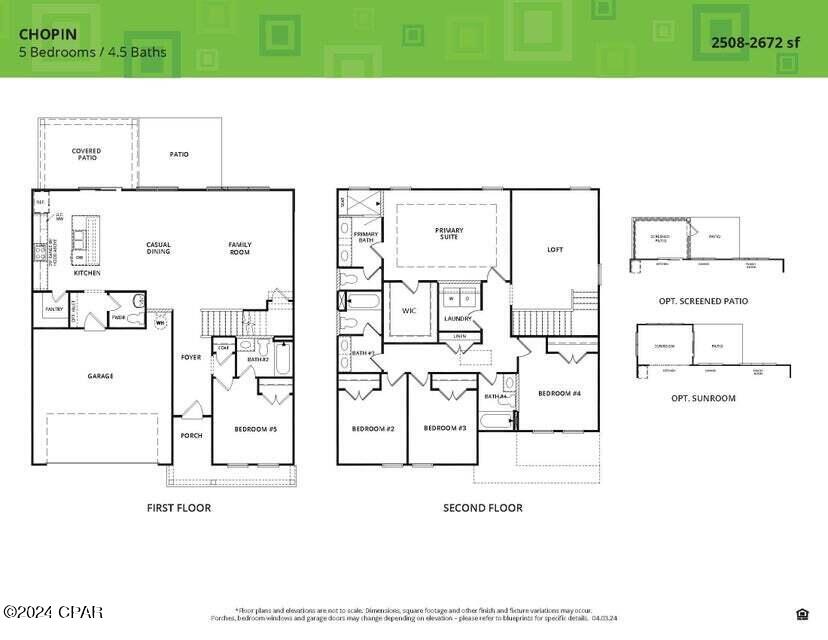
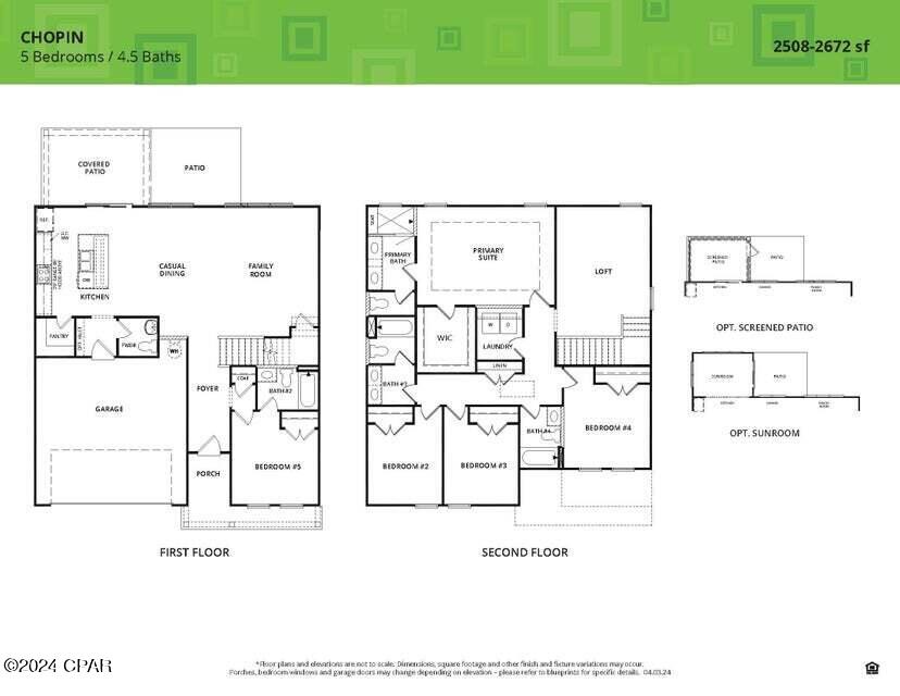
5/4.5

Built in 2024

$724,900

Details

Join us for our Model Grand Opening on March 27! (11am-2pm) Welcome to Brizo, a brand-new neighborhood where tranquility meets convenience. Offering 18 homesites, Brizo is conveniently located near the bay and has a close proximity to the beach, shopping, and dining options. With 4 spacious floor plans, Brizo is perfect for growing families or those looking for more space. The combination of a coastal location, nearby amenities, and accessibility to popular destinations such as 30A, Grayton Beach, and Topsail State Park makes Brizo an ideal choice for individuals or families looking for a vibrant and well-connected community in the Santa Rosa Beach area. The Schubert floor plan offers 4 bedrooms and 3.5 baths with an open living concept downstairs and an amazing loft area upstairs. These homes come with amazing standard features such as impact windows/doors, quartz countertops, LVP floors throughout all of the common areas/bedrooms, just to name a few!
GENERAL
Real Estate Type RES
Full Bathrooms 4
Half Bathrooms 1
One Quarter Bathrooms 0
Three Quarter Bathrooms 0
Lot Size 0
Real Estate Sub Type SingleFamilyResidence
Stories 2
Year Built 2,024
Unit Number Lot 1
Lot Size Units Acres
Lot Size Area 0
Lot Size Dimensions 54 x 100
Agent Key 27,030,185
Agent MLS Id TEAMG
Office Key 5,952,252
Source System Name Central Panhandle Association of REALTORS®
Source System Id TRESTLE
Office Phone 850-460-2900
Elevation 0
Parcel Number 20-2S-20-33110-000-0010
Number Of Units Total 0
Tax Legal Description LOT 1 BRIZO S/D FKA ALDERBERRY RD PB 26-89 OR 3340-4051
Internet Address Display True
Internet Automated Valuation Display True
Agent Name Abbott Martin Group
Agent Email [email protected]
Agent Cell 850-460-2900
Agent Office 850-460-2900
Broker Id EXP98
Office Name EXP Realty LLC
Square Feet 2,508
Listing Contract Date 3/11/2025
Status Active
BUILDING
Construction HardiplankType
Cooling CentralAir
CeilingFans
Heating HeatPump
Style Coastal
Interior Features BreakfastBar
HighCeilings
KitchenIsland
RecessedLighting
Loft
Exterior Features Patio
Appliances Dishwasher
Disposal
Microwave
Refrigerator
RangeHood
Flooring Tile
Vinyl
Fireplace False
Parking Total 0
Parking Features Attached
Garage
Security Features SmokeDetectors
Utilities ElectricityAvailable
Patio And Porch Features Covered
Open
Patio
Porch
Private Pool False
Spa False
LOCATION
Subdivision No Named Subdivision
Directions Heading West from 331
turn right onto E Hewitt and then take a right onto Alderberry Rd. The community will be on your right.
County Walton
Waterfront False
SCHOOLS
Elementary School Dune Lakes
Middle School Emerald Coast
High School South Walton
REAL ESTATE
RoomsTotal 7

Questions