Home\Real Estate\Search Results\142 Needle Rush Drive

142 Needle Rush Drive

#768646

RES

4/3

Built in 2025

$464,900

Details

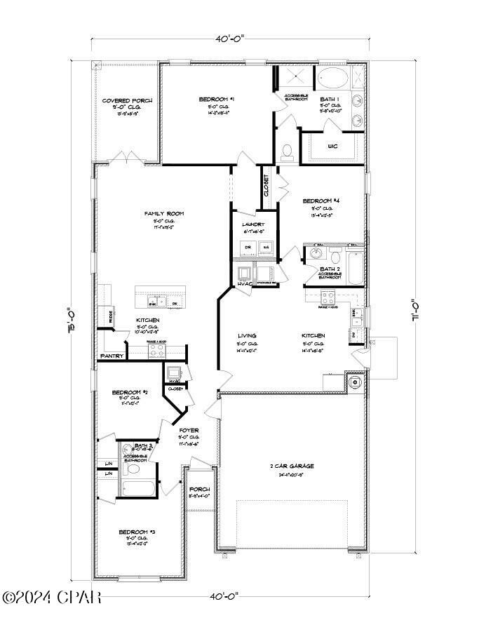
Welcome to 142 Needle Rush Drive, one of our new home floor plans at WindMark Beach in Port Saint Joe, Florida. The Kennedy has two floor plan options: a 4-bedroom, 3-bath plan and a 5-bedroom, 3 bath plan with 2145 square feet of beautiful, spacious living. The Kennedy is the perfect home for a family looking for more room or for those who want to have family and friends visit the cozy little town of Port Saint Joe. When you enter this beautiful home, you will notice beautiful granite countertops in the kitchen and all bathrooms, 5 panel wood doors, engineered vinyl plank flooring throughout the entire home and 9-foot ceilings throughout. The kitchen is equipped with stainless-steel appliances including a free-standing smooth top range, microwave, and dishwasher. The kitchen features a large walk-in pantry, disposal, and water filtration system, as well has an island with extra cabinet storage underneath. The additional kitchen floor plan is perfect for an in-law's suite, as it has a dedicated kitchen, bedroom, and bathroom that can be set apart from the main home. The bathrooms come with beautiful granite countertops and all cabinets in the home have white cabinetry. The primary bathroom features a walk-in shower with glass doors, a tub, a double vanity, and a closet. These homes come with Smart Home Technology, enhancing your home in a modern way. On the outside of the home, it is protected with stylish Hardie Board siding and has a rear covered patio perfect for a patio furniture set to enjoy the sunrises and sunsets in the shade. Each home comes with a fully sodded yard, gutters, and shingles with a 30-year warranty. Come and see why the Kennedy is the perfect next home for you and your family. Find your new home at WindMark Beach and schedule a tour with us today!
GENERAL
Real Estate Type RES
Accessibility SmartTechnology
Full Bathrooms 3
Half Bathrooms 0
One Quarter Bathrooms 0
Three Quarter Bathrooms 0
Lot Size 0
Real Estate Sub Type SingleFamilyResidence
Stories 0
Year Built 2,025
Lot Size Units Acres
Lot Size Area 0
Lot Size Dimensions 65x110
Agent Key 27,028,552
Agent MLS Id B5444
Office Key 5,952,446
Source System Name Central Panhandle Association of REALTORS®
Source System Id TRESTLE
Office Phone 850-660-1701
Agent Url http://www.markmiles1027aol.com
Elevation 0
Parcel Number 04229-406R
Number Of Units Total 0
Tax Legal Description S9 T7S R11W WINDMARK NORTH PHASE II (PB 8 PG 66-69) LOT 194 ORB 788/846 FR WINDMARK JV LLC MAP 31
Internet Address Display True
Internet Automated Valuation Display True
Agent Name Mark A Miles
Agent Email [email protected]
Agent Cell 850-775-2132
Agent Office 850-660-1701
Broker Id DROFEC
Office Name DR Horton Realty of Emerald Coast
LLC
Square Feet 2,145
Listing Contract Date 2/11/2025
Status Pending
BUILDING
Construction HardiplankType
Cooling CentralAir
CeilingFans
Heating Central
Electric
ForcedAir
Style Craftsman
Interior Features CrownMolding
HighCeilings
KitchenIsland
Pantry
RecessedLighting
SplitBedrooms
SmartHome
SmartThermostat
Exterior Features SprinklerIrrigation
OutdoorShower
Appliances Dishwasher
Disposal
Microwave
PlumbedForIceMaker
Flooring LuxuryVinylPlank
Fireplace False
Parking Total 0
Parking Features AdditionalParking
Attached
Driveway
Garage
GarageDoorOpener
Paved
CommunityStructure
Window Features DoublePaneWindows
Security Features SecuritySystem
SmokeDetectors
SecurityService
Utilities CableConnected
ElectricityAvailable
HighSpeedInternetAvailable
UndergroundUtilities
Patio And Porch Features Covered
Patio
Porch
Private Pool False
Spa False
LOCATION
Subdivision Windmark
Directions Traveling on W Hwy 98
Turn on Flat Water St West and follow to Needle Rush Drive and turn left.
County Gulf
Waterfront False
SCHOOLS
Elementary School Port St. Joe
Middle School Port St. Joe
High School Port St. Joe
REAL ESTATE
RoomsTotal 6

Questions