Home\Real Estate\Search Results\121 Charleston Court

121 Charleston Court

#765343

RES

4/2.5

Built in 2025

$690,000

Details

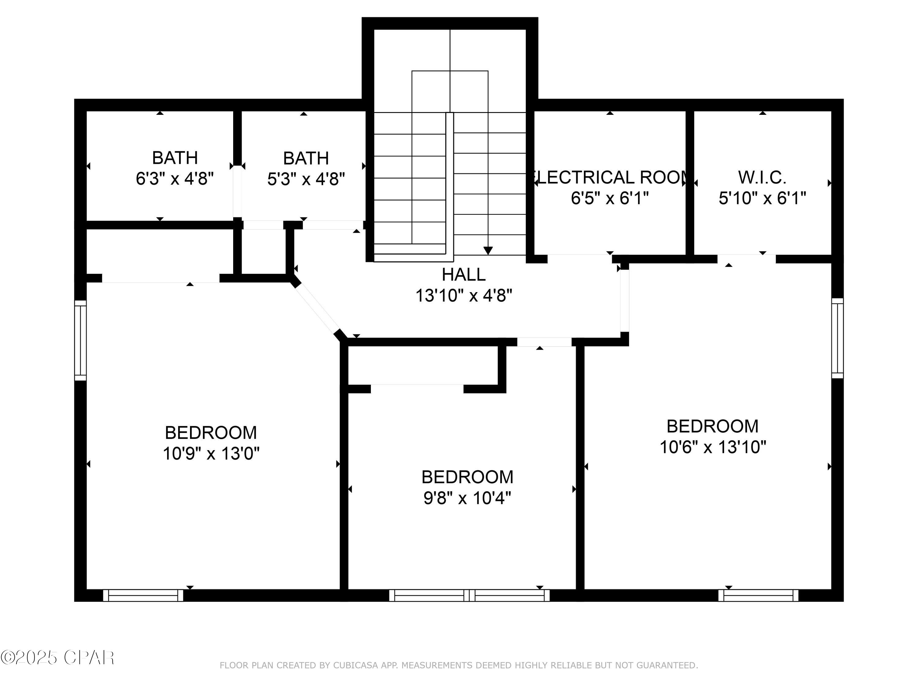
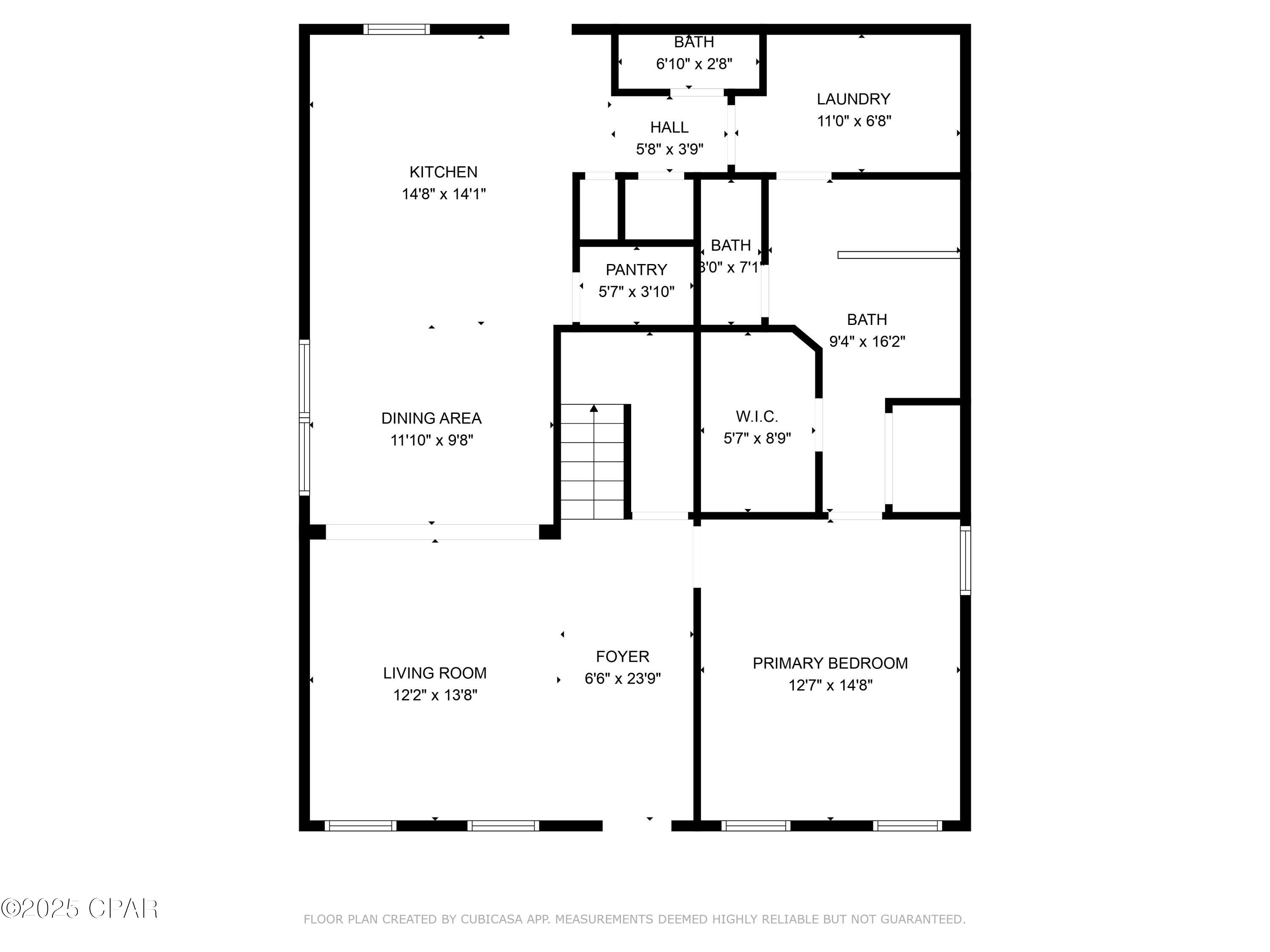
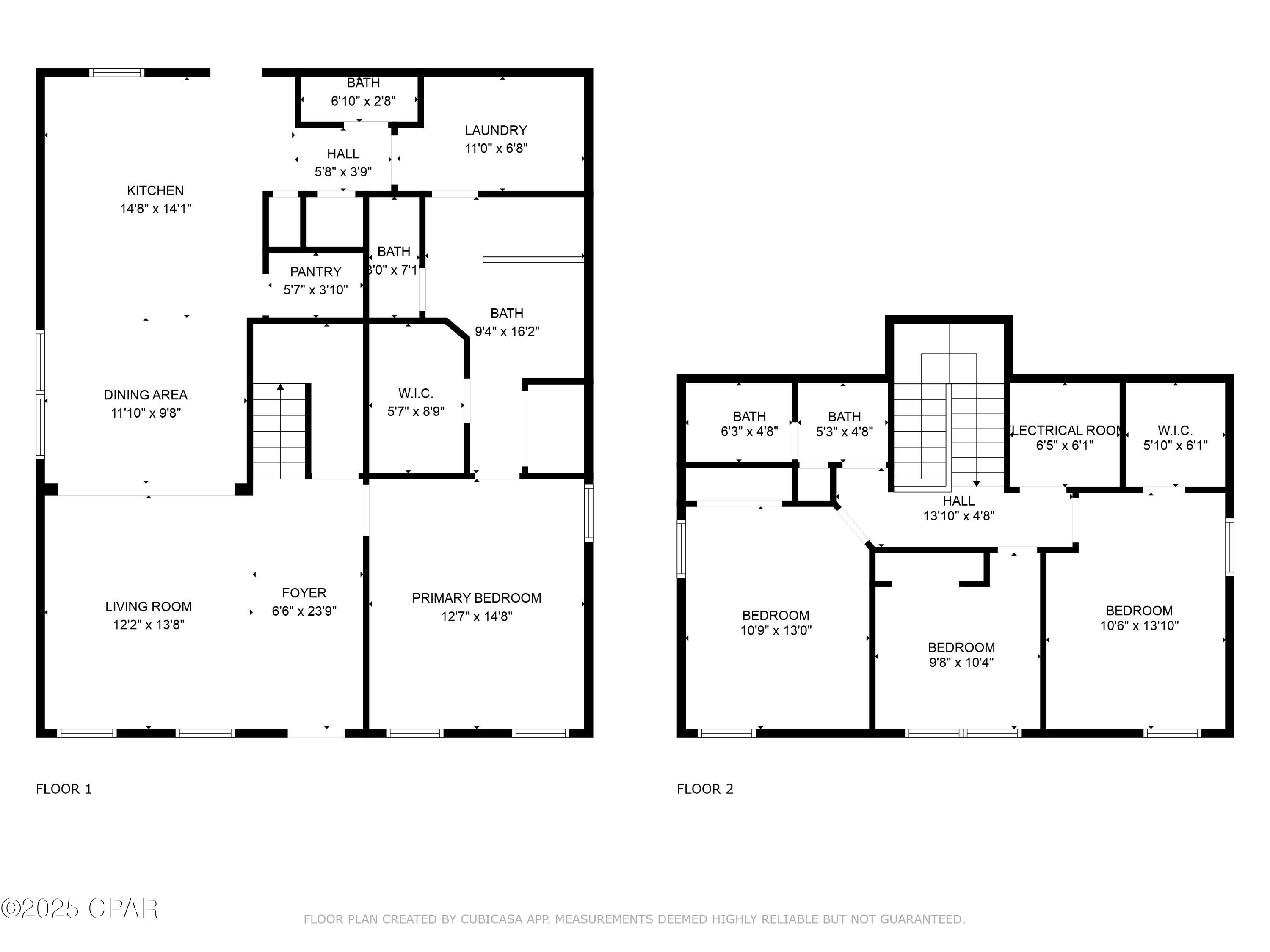
NEW CONSTRUCTION offered in the brand new Tapestry Park Phase III in Panama City Beach built by Southern Coastal Homes-2 blocks to the beaches of the Gulf of Mexico and beach access #43, close to shopping and dining, and the famous Pier Park. Homeowners have access to two community pools, lighted sidewalks and green spaces as well as access to tennis courts, basketball courts, and club house. This 4/2.5 CYPRESS floorplan is a brand new Southern Contemporary design with old Florida charm and coveted new technology and upgrades. INTERIOR large volume Great Room with an open floor plan, kitchen with center island and vaulted ceiling, custom cabinetry, walk-in pantry, pot filler and stainless steel appliances. The FIRST FLOOR Master Suite has a beautiful tray ceiling, expansive tiled shower, double vanity and his and her walk-in closets with direct access to laundry room. The second floor holds 3 well-appointed bedrooms ample storage space. EXTERIOR features of this home include Hardie siding with beautiful brick, 8 ft doors, rear detached garage with covered grilling porch. Home includes smart lock, tankless gas water heater, energy efficient appliances, dual A/C units and has been expertly designed by our design team.
GENERAL
Real Estate Type RES
Full Bathrooms 2
Half Bathrooms 1
One Quarter Bathrooms 0
Three Quarter Bathrooms 0
Lot Size 0
Real Estate Sub Type SingleFamilyResidence
Stories 2
Year Built 2,025
Lot Size Units Acres
Lot Size Area 0
Lot Size Dimensions 60x131
Agent Key 27,028,927
Agent MLS Id B4454
Office Key 5,952,535
Source System Name Central Panhandle Association of REALTORS®
Source System Id TRESTLE
Office Phone 850-769-8326
Agent Url http://www.c21commander.com
Agent Fax 866-833-8326
Elevation 0
Parcel Number 34109-700-160
Number Of Units Total 0
Tax Legal Description TAPESTRY PARK PHASE III LOT 16
Internet Address Display True
Internet Automated Valuation Display True
Agent Name Charlie W Commander
Agent Email [email protected]
Agent Cell 850-819-5850
Agent Office 850-769-8326
Broker Id BCC2
Office Name CENTURY 21 Commander Realty
Square Feet 2,170
Listing Contract Date 11/21/2024
Status Active
BUILDING
Construction Brick
HardiplankType
Cooling CentralAir
Heating Central
Electric
Interior Features HighCeilings
KitchenIsland
Pantry
RecessedLighting
VaultedCeilings
Exterior Features SprinklerIrrigation
Appliances Dishwasher
Microwave
Refrigerator
RangeHood
Flooring Carpet
LuxuryVinylPlank
Tile
Fireplace False
Parking Total 0
Utilities ElectricityAvailable
UndergroundUtilities
Patio And Porch Features Covered
Patio
Porch
Private Pool False
Spa False
LOCATION
Subdivision Tapestry Park
Directions From the intersection of Lyndell Lane and Hutchison Blvd continue North on Lyndell Lane. Turn left on to Charleston Court. Home will be on the left.
County Bay
Waterfront False
SCHOOLS
Elementary School Hutchison Beach
Middle School Surfside
High School Arnold
REAL ESTATE
RoomsTotal 7

Questions